Щит учетно-распределительный этажный (встраиваемый в нишу) - устройство для учета и распределения электрической энергии, а также для защиты распределительных цепей при перегрузках, коротких замыканиях и недопустимых токах утечки на землю (с устройством защитного отключения на вводе) в сетях с глухозаземленной нейтралью (системы заземления TN-S и TN-C-S)
Снято с производства
Нормативно-правовое обеспечение
- Отвечают требованиям ГОСТ Р 51321.1-2000 (МЭК 60439-1-92),
ГОСТ Р 51628-2000. - Сертификат соответствия N РОСС RU.ME86.B00359
Достоинства
- Щит учетно-распределительный поставляется полностью укомплектованным аппаратами распределения, имеет высокую монтажную готовность.
- Аппараты установлены на монтажной рейке ТН 35 - 7,5.
- Исполнения с однофазным вводом в квартиру.
- Щит учетно-распределительный предусматривает установку реечных счетчиков различных исполнений.
- Щит учетно-распределительный предотвращает безучетное потребление электроэнергии.
- Имеет силовой и низковольтный отсеки с внутренними замками (разной секретности). Замок силового отсека укомплектован четырьмя ключами, слаботочного - двумя.
- Щит имеет выдвижной конструктивный элемент для установки потребителем навесного замка (по требованию заказчика).
- Низковольтный отсек щита предназначен для установки распределительных устройств телевидения, телефонной связи и радиотрансляционной сети.
- Корпус щита выполнен из металла толщиной 1мм., обладает механической прочностью и огнестойкостью, окрашен стойким полимерно-порошковым покрытием светлых тонов RAL 7035.
- Щит учетно-распределительный имеет исполнение с трехполюсным выключателем стояка.
- Имеются шины «N» и «РE» с достаточным количеством контактных зажимов.
- Число подключаемых к щиту квартир до 4-х.
- Допускают пломбирование оперативной панели щита.
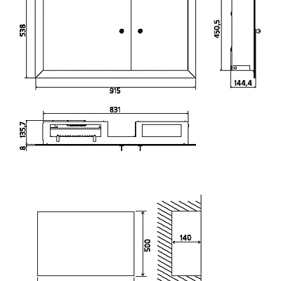
- Вариант установки - в нише 500 х 900 х 140 по ГОСТ Р 51628.
- Крепление в нише боковое четырьмя распорными винтами М6.
- Гарантийный срок - 5 лет со дня ввода в эксплуатацию.
- По индивидуальному заказу возможно изготовление различных типоисполнений щитов.
Документация
| Паспорт | PDF 399 Kb |
| Типовые электрические схемы | PDF 1 Mb |

























